images/DION-EX-C-F-1.jpg

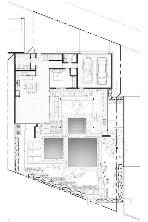
Dion Drive

Private Residence
Palm Springs, California
Completed

825 sq ft kitchen, pantry, and main live space renovation with a new 300 sq ft pool pavilion, pool, spa, baja shelf, and complimentary hardscaping and landscaping.

A playful approach with water, hardscape, landscape, and pavilion within a compact rear yard with sustantial west facing mountain views.

images/DION-EX-F-1.jpg images/DION-EX-F-2.jpg images/DION-EX-D-E-1.jpg images/DION-EX-C-PP-1.jpg images/DION-EX-C-PP-2.jpg images/DION-EX-PP-Z-3.jpg images/DION-EX-PP-Z-2.jpg images/DION-EX-PP-Z-1.jpg images/DION-3D-1.jpg images/DION-3D-2.jpg images/DION-3D-3.jpg images/DION-3D-4.jpg images/DION-site_plan-bw.jpg